| RF-TYPE | RBI-TYPE | RS-TYPE | RM-TYPE | RH-TYPE | RMF-0911 | RB-TYPE | RT-TYPE |
|---|
| RL-TYPE | XXXXXX | XXXXXX | XXXXXX | XXXXXX | XXXXXX | XXXXXX | XXXXXX |
|---|
![]() |
![]() |
|---|
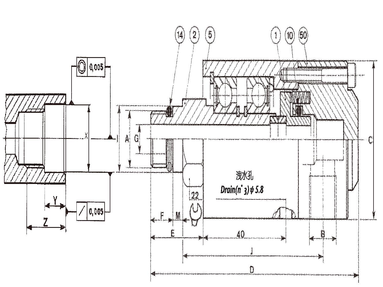
TYPE |
A |
B(PT) |
C |
D |
E |
F |
| RSF08U05R01N2 | 5/8-18UNF RH | 1/4 | 44 | 105 | 29.5 | 14 |
| RSF08U05L01N2 | 5/8-18UNF LH | 1/4 | 44 | 105 | 29.5 | 14 |
| RSF08M16L03N2 | M16XP1.5 LH | 1/4 | 44 | 102 | 26.5 | 11 |
G |
I |
M |
J |
X |
Y |
Z |
(KG) |
| 8.5 | 16.650 16.645 | 5 | 69 | 16.652 16.662 | 9 | 21 | 0.35 |
| 8.5 | 16.650 16.645 | 5 | 69 | 16.652 16.662 | 9 | 21 | 0.35 |
| 8.5 | 17.994 17.983 | 5 | 69 | 17.997 18.007 | 9 | 18 | 0.35 |
壓力 (BAR) |
工作溫度(℃) |
轉速(RPM) |
流量 (Flow Rote) |
| 100 | 120 | 15,000 | 8 |
材質 |
Materials |
轉軸[2]-固定環 [1]:不銹鋼 |
Rotor(2)-Stationary Ring(1):Stainless Steel |
外殼[5-50]:鋁合金 |
Support(5-50) Anodised aluminium |
密封面材質:碳化鎢對碳化鎢 |
Faces materials:Tungsten Carbide vs Tungsten Carbide |
襯墊 [10-14] :O型環 |
Gasket (10-14) : O Ring |
*產品編號會依需求不同而變動(Product labels will change according to different needs) |
|---|
*如有特殊規格請聯絡本公司(For special specifications please contact the company) |
|---|